Inline Annealing Furnace
Model AF110

Inline Annealing Furnace
Model AF110

فرن تخمير السلك
موديل AF110

Technical specifications:
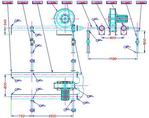
* wire annealing furnace model WAF111
* furnace inner dim`s are length 27 m, width 124 cm, height 99 cm
* furnace outer dim`s are 27.64 m, 206 cm, 348 cm l*w*h
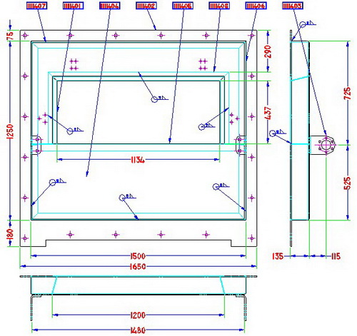
* furnace total weight is about 30 ton without bricks weight
* furnace wall thickness 130 mm including refractory bricks
* furnace wall sheet metal thickness 5 mm
* furnace is devided into 9 equal sections each of 3 m length
* furnace is provided with 20 inspection doors along furnace length
* furnace is provided with 38 wire roll holder along furnace length
* furnace is provided with 36 burner head along furnace length
* fuel pumping system is proviede with control valve at each burner
* air blowing system is provided with control valve at each burner
* spark ignition system is provided with control panel at each burner
* gas exhaust line has take off port at each section
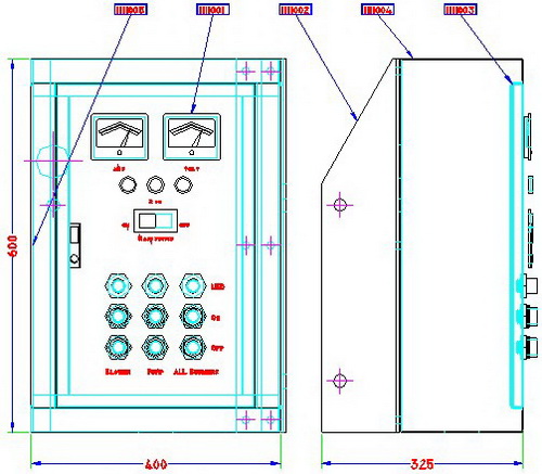
* control panel to operate and stop the furnace totally
* control of each burner is adjusted from valves near each burner
* electric power required for furnace is 20 kw 380 v 50 hz
* external fuel tank has to be connected to furnace fuel system
* temperature adjustment through control valves and wire speed
* furnace accepts 48 wire of 10 mm max. dia. and 1200 c° max. temp.